Listing

Dijual Rumah Di Munjul Cipayung Jakarta Timur

Jakarta Timur 05 December 2025 2,853 view
Premium
Jual

Harga

Rp. 900 Juta NEGO
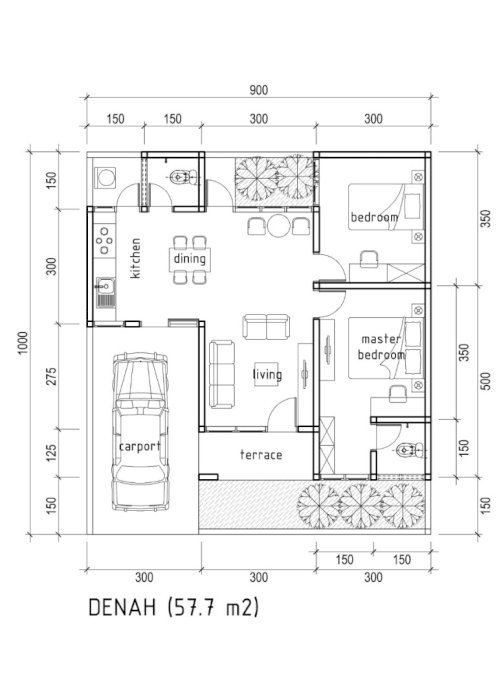
Rumah baru dibangun, awal tahun 2019. Dapat dilihat sketsa map rumah.
Rumah arah pintu ke Timur.
Lantai granit 60 cm. Kusen, Jendela, Pintu semua dari Kayu Jati. Dinding semua bata merah.
Air yang tersedia, air tanah.
Listrik 1300 W.
Carport 1 mobil
Rumah dekat Ibnu Hajar Boarding School, Pesantren Al Hamid.
Dekat pasar tradisional Munjul.
Dekat tol cibubur. Stasiun LRT Cibubur, Cibubur Junction Mall dan Transtudio Cibubur.
Luas Tanah 90 M2
Luas Bangunan 60 M2
Kamar Tidur 2
Kamar Mandi 2