Listing

Take Over KPR Di Nol Km Jalan Dr. Sutomo (Kediri-Jombang-Mojokerto)

Jombang 04 February 2026 0 view
Jual

Harga

Rp. 290 Juta NEGO
Dijual (Take Over) Rumah:
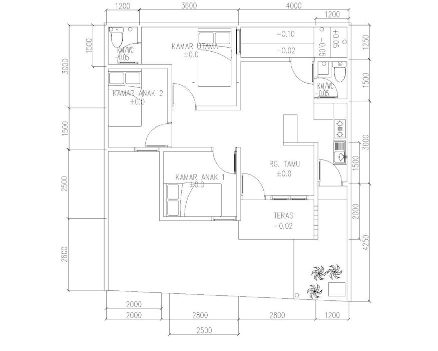
- Lokasi: Perum De Griyaland B-18, Jl. Dr. Sutomo, Banjar Agung, Bareng, Jombang (Nol Km Jalan Kediri-Jombang-Mojokerto)
- Luas Tanah +/- 90 m2
- Luas Bangunan +/- 60 m2
- 3 KT (1 KT Utama, 2 KT anak)
- 2 KM (1 KM dalam, 1 KM Umum)
- 1 gudang/garasi motor
- Kanopi full di depan utk carport, & belakang utk area jemur, dan samping
- Pompa & Tandon air 700L
- Listrik 1.300
- Posisi Rumah Hook Paling Depan
- Setifikat: SHM atas nama pemilik
Luas Tanah 90 M2
Luas Bangunan 60 M2
Kamar Tidur 3
Kamar Mandi 2
Maaf, pengguna ini tidak aktif. Harap cari iklan yang lain dibawah.