Listing

Dijual Rumah Exclusive Didaerah Kaki Gunung Salak, Hawa Sejuk, Nyaman

Bogor 28 January 2026 2,671 view
Premium
Jual

Harga

Rp. 2.9 Miliar NEGO
Premium Location :
- Bebas Banjir
- Jogging Track
- Keamanan 24 Jam / one gate system
- Lokasi strategis berada ditengah kota Bogor
- Akses dari dan menuju toll Jagorawi
- Akses Dekat Rumah Sakit Melania, RS UMI, - - Akses Dekat Sekolah SD Al-Azhar Syifabudi BNR, SMPN 9 Bogor, SMAN 4 Bogor
-Lokasi dekat dengan Rumah Makan Rumah Air, Rekreasi De Voyage, Kolam Renang The Jungle dan Hotel Aston Bogor

Deskripsi Rumah:
- Instalasi kabel listrik bawah tanah
- Rumah baru selesai dibangun tahun 2018
- Pintu Utama menggunakan Finger Print
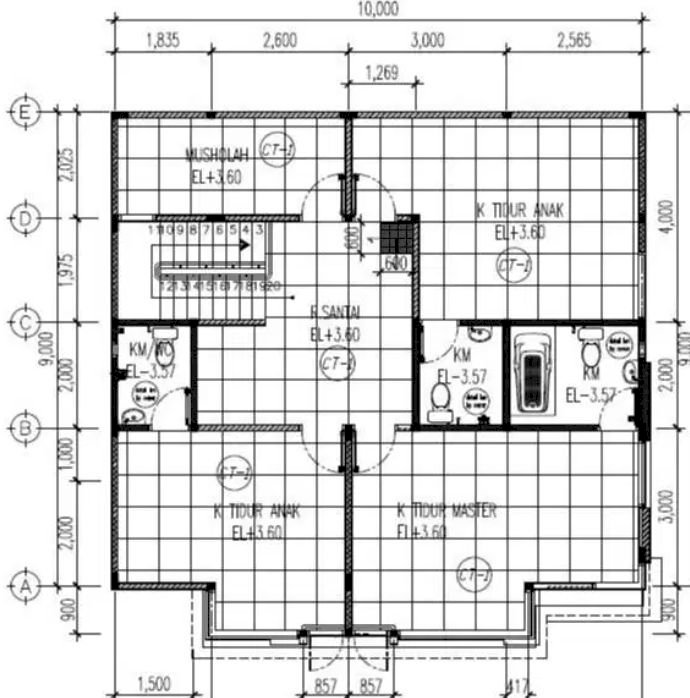
- Memiliki 4 Kamar Tidur
- Memiliki 6 Kamar Mandi (Setiap Kamar Tidur ada Kamar Mandi)
- Memiliki Carport 2 Mobil
- Lokasi di Hook menghadap ke Timur dan Selatan (View Gunung Salak, Gunung Pangrango dan Kota Bogor)
- Lokasi sangat nyaman, Sejuk dan tidak berisik
- Lantai 1 Kamar Tamu, Lantai 2 Kamar anak, Kamar Master, Musolah
- PDAM

- Internet
- Toren Air atas dan bawah
- Listrik 4400
- Untuk Melihat rumah silahkan janjian melalui WA
- Harga Nego sampai jadi
Luas Tanah 255 M2
Luas Bangunan 210 M2
Kamar Tidur 4
Kamar Mandi 6
Tingkat 1