Listing

Dijual Rumah Brand New 2 Lantai Dalam Proses Pembangunan Jakarta Barat

Jakarta Barat 25 December 2025 5,864 view
Premium
Jual

Harga

Rp. 2.4 Miliar
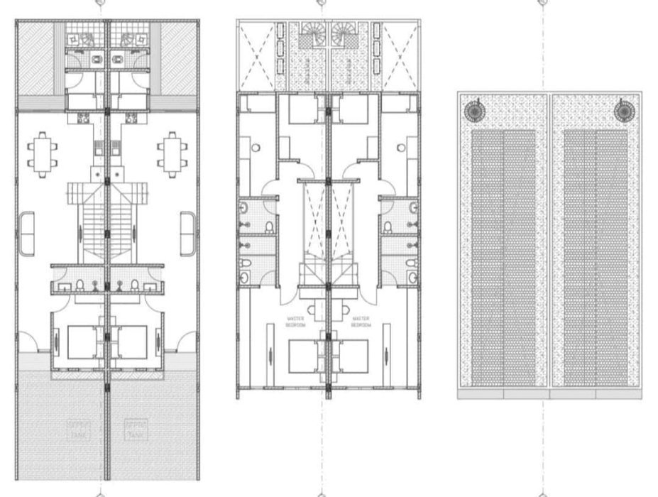
Dijual Rumah Brand New 2 lantai (dalam proses pembangunan)
Lokasi: Kavling DKI (lokasi jalan premium), Meruya Utara Jakarta Barat.

Ukuran Tanah: 5 x 22,8m
2 lantai
LT: 114m2
LB: 170m2
Certificate SHM
PLN 3500 watt
KT 4+1
KM 4+1
2 car port

@2.45 M nego (best deal dalam tahap pembangunan)

Hubungi:
Josafat
Atlantis Realty Alam Sutera
HP/WA: 0811-1460-980
Luas Tanah 114 M2
Luas Bangunan 170 M2
Kamar Tidur 5
Kamar Mandi 5