Listing

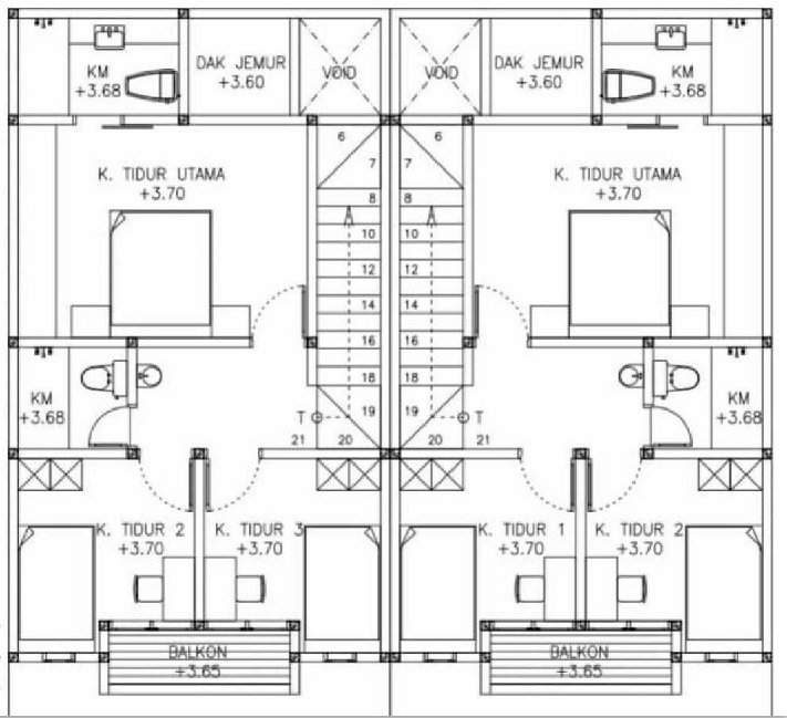
Dijual Rumah Bikin Ngilerr Di Batununggal Indah (Tersedia 5 Unit)

Bandung 05 December 2025 979 view
Premium